Semester 3 Main Project

YEAR: 2017


LOCATION: Holbæk havn

FUNCTION: Mixed use social housing  gfa 4151 m2

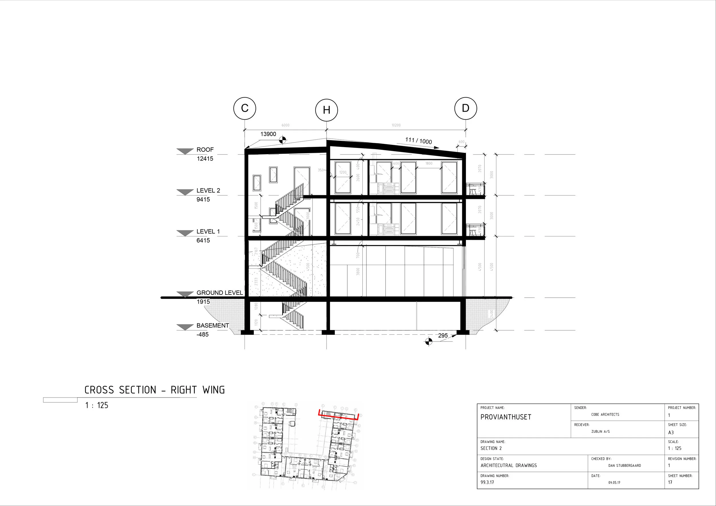
PROJECT DESCRIPTION: The focus of this project was LEAN production and construction. We decided on the use of  a prefabricated building system for all major building elements. This was to reduce construction time and onsite waste.
Various  systems  were  analyzed and compared for erect-ability and building reuse  possibilities.  This  modular system was designed to be disassembled.
All element divisions were produced through a BIM model in order to mark locations and produce element identification numbers.

Individually, I focused on the floor and its connections between the different elements.


Floorplans

Elevations

Sections

Hollow core floor slab relative drawings